电厂脱硫的工艺流程
电厂脱硫的工艺流程
电厂燃煤脱硫的方法根据脱硫过程产生时段的先后,可分为燃烧前、燃烧中和燃烧后三大类。燃烧前称为煤炭脱硫主要有洗选煤、化学脱硫和煤炭转化等;燃烧中称为炉内脱硫主要有循环流化床和炉内伴烧脱硫等;燃烧后脱硫也称烟气脱硫,根据脱硫介质的温度又可再分为湿法、干法和半干法。目前火电厂采用的主流脱硫方法为烟气脱硫。
电厂烟气脱硫治理分干法和湿法2种。目前世界上使用范围较广的脱硫方法是湿法脱硫,约占脱硫总量的80%以上。常用的湿法脱硫方法,根据其所选用的吸收剂不同,又可分为石灰石-石膏法、钠碱法、双碱法、氧化镁法、氨法等等。在湿法脱硫中,石灰石-石膏法因其原料来源广且成本低,技术成熟且经济性高,应用较为广泛,镁基脱硫(氧化镁法)脱硫效率高、投入成本低技术成熟在山东、辽宁、河北等矿产资源丰富的地方得到青睐。
电厂脱硫的用粉要求
物料 细度(目) 通筛率(%)
石灰石一 250 95
石灰石二 325 90
氧化镁 325 D90
注:CaO含量在50%以上,存在地区差异。
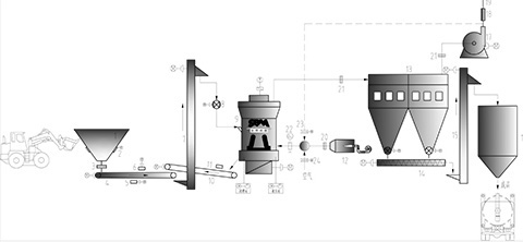
立磨工艺流程示意图
电厂脱硫剂制粉设备一体化定制方案
1. 原料检测,项目跟进
拥有独立的原料检测实验室,能帮助客户完成脱硫石灰石原料矿物的品位化验,以确定理想的研磨方案;并能化验成品粉体的细度与粒度分布、反应活性从而确定脱硫效率,为客户提供改善石灰石粉品质及产量的技术支持。佰利乐机器专业的商务团队会协助跟进项目的申报等工作,保障客户的项目有序推进。
2.现场勘探,工艺设计
佰利乐机器拥有卓越的技术服务团队,其中理想工程师32人,工程师60人,理想技师125人,专业售前技术团队,依托客户需求,利用专业化工具进行现场实地规划,为客户提供详细的项目设计方案,提供理想的设备选型方案、设备清单及项目造价、设计现场基础图纸,并能根据客户的特殊要求设计特殊的工艺和流程。团队专业技术涵盖石灰石制粉的整个工艺链。
3. 设备选型
电厂脱硫剂制粉设备一般选用立式磨粉机。